イベント情報
開催中
2026年4月24日(金)~2026年5月31日(日)
【オンもオフも満たす街で暮らす】
UrbanResortHouse 販売会開催
No.1
No.2
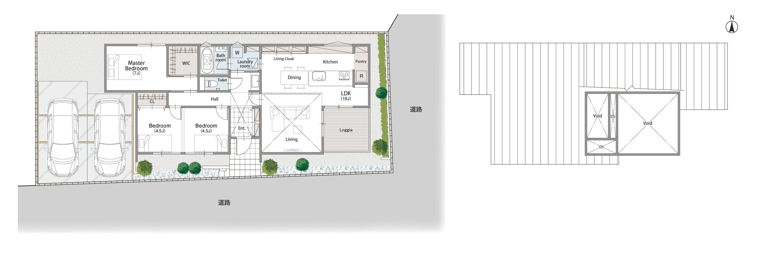
ロジアとの家族の秘密基地ロフトのある家
憧れの木更津金田エリアに新分譲地誕生。リビングとつながる「ロジア」で家にいながら外も楽しむ暮らし。ロフトが家族の秘密基地になる、心弾む平屋。日本最大級のアウトレット徒歩5分の好立地。オンオフ充実する街に住めるおうちの販売会です。
土地+建物の価格
4,770万円(税込)
敷地面積/176.65㎡(53.43坪) 施工床面積/ 78.66㎡(23.79坪)
PICK UP
見どころ
PLAN
プラン
GALLARY
物件ギャラリー
敷地面積
176.65㎡(53.43坪)
施工床面積
78.66㎡(23.79坪)
価格
4,770万円(税込)
最寄駅
JR 内房線「袖ケ浦」駅・・・車 約9分(約3.3km)
総戸数
2
販売戸数
2
建物構造
木造平屋建
建築確認番号
第25UDI1C建03038号
土地権利
所有権
地目
畑
都市計画
市街化区域
用途地域
第一種住居地域
建ぺい率
60%
容積率
200%
接道状況
南側19.26m、幅員6m公道
設備
公営水道・本下水・都市ガス
建物建築月日
令和8年3月
引渡時期
相談
現況
完成済
取引形態
売主
その他
図面と現況が異なる場合は、 現況優先となります。
Access
アクセス
木更津市中島1327付近
※詳細な場所はご予約が確定しだいお伝えいたします。
Surrounding environment
周辺環境
◆JR内房線「袖ケ浦」駅 車 約9分(約3.3km)
◆木更津市立金田小学校 徒歩 約22分(約1.6km)
◆木更津市立金田中学校 徒歩 約20分(約1.5㎞)
◆うみまち保育園 車 約5分(約1.6㎞)
◆セブンイレブン 徒歩 約9分(約650m)
◆金田バスターミナル 車 約5分(約1.4km)
◆カインズホーム木更津金田店 徒歩 約6分(500m)
◆コストコホールセール木更津倉庫店 車 約6分(約2.1㎞)
◆三井アウトレットパーク木更津 徒歩約5分(約400m)
家にいながら外を楽しむ、ロジアのある暮らし
憧れの金田エリアに新分譲地誕生。リビングとつながる「ロジア」で家にいながら外も楽しむ暮らし。収納たっぷり、家事動線もスムーズな使いやすい間取りです。日本最大級アウトレットまで徒歩5分の好立地で、オンオフ充実する街に住めるおうち、販売会開催です。
土地+建物の価格
4,790万円(税込)
敷地面積/176.65㎡(53.43坪) 施工床面積/ 82.81㎡(25.01坪)
PICK UP
見どころ
PLAN
プラン
GALLARY
物件ギャラリー
価格
4,790万円
最寄駅
JR内房線『袖ケ浦』駅
総戸数
2
販売戸数
2
建物構造
木造1階建
建築確認番号
第25UDI1C建03086号
土地権利
所有権
地目
畑
都市計画
市街化区域
用途地域
第一種住居地域
建ぺい率
60%
容積率
200%
接道状況
南側19.26m、幅員6m公道
設備
公営水道・本下水・都市ガス
建物建築月日
令和8年3月
引渡時期
相談
現況
完成済
取引形態
売主
その他
図面と現況が異なる場合は、 現況優先となります。
Access
アクセス
木更津市中島1327付近
※詳細な場所はご予約が確定しだいお伝えいたします。
Surrounding environment
周辺環境
JR内房線『袖ケ浦』駅 車約9分(約3.3km)
木更津市立金田小学校 徒歩約22分(約1.6㎞)
木更津市立金田中学校 徒歩約20分 (約1.5km )
うみまち保育園 車約5分(約1.6㎞)
セブンイレブン 徒歩約9分 (約650m)
金田バスターミナル 車約5分 (約1.4㎞)
コストコホールセール木更津倉庫店 車約6分(約2.1㎞)
カインズホーム木更津金田店 徒歩約6分(約500m)
三井アウトレットパーク木更津 徒歩約5分(約400m)
EVENT INFO
イベント開催概要
イベント名
【オンもオフも満たす街で暮らす】
UrbanResortHouse
販売会
開催日
2026年4月24日(金)~2026年5月31日(日)
開催時間
10:00〜18:00
参加特典
Amazonギフトカード最大10,000円分
※進呈条件
以下掲載項目に該当するお客様1組様につき1回の進呈とさせていただきます。
※過去にwith mamaへご来場いただいたことのある方は対象外となります。
※キャンペーン期間中に、Webまたはお電話でご予約いただき、ご来場された方に限ります。
※ご来場時アンケートに全てご記入いただいた方に限ります。
※住宅ローン事前審査でAmazonギフト券をご進呈いたします。
(現金でお支払いのお客様には、物件購入に必要なご資金について確認させていただいた上で、Amazonギフト券をご進呈いたします。)
※初回平日来場で10,000円、初回土日祝日来場で5,000円をご進呈いたします。
※注文住宅に興味が無いなど明らかにキャンペーン目当てと弊社が判断した場合は対象外となります。
※弊社施工可能エリアにて前向きにお家づくりをご検討されている方に限ります。
※ZOOM等オンラインでのご相談は対象外となります。
※1家族様1回までとなり、その他のキャンペーンとの併用不可となります。
※事前の来場確認で弊社からのお電話、またはメールでご対応いただけるかた。
※直近2年以内に新築を真剣にお考えのかた。
その他注意事項
1.来場予約はご来場の前日までにご予約をお願いいたします。
2.水曜日は定休日のため、スタッフからの確認のご連絡はお時間をいただく場合がございます。予めご了承ください。
3.店舗の予約状況によってご予約時間帯等を調整いただく場合がございます。
開催場所
withmama木更津店・withmama袖ケ浦店
ENTRY FORM
イベントお申し込みフォーム
モデルハウスの見学ご予約の際は、お手数ですが、
以下に必要事項をご記入いただけますよう、よろしくお願いいたします。
皆様のお越しをスタッフ一同お待ちしております。
PROMISE
見学会でお約束できること
モデルハウス見学は、事前のご予約をお願いいたします。お客様が見学していただくにあたり、 弊社では以下の3つのことをお約束しています。

どんなご相談でも
真摯にお伺いします
モデルハウスの仕様やコスト、プランのポイントについてのご質問はもちろんですが、実際の家づくりの進め方や資金計画、土地の悩みなどのお問い合わせにも、誠実に対応させていただきます。何でもご相談ください。

営業行為は
一切行いません
モデルハウス見学中のしつこい営業は行いませんので、ゆっくりとご覧ください。また、見学終了後も合意のない電話連絡、訪問なども行いませんのでご安心ください。

お客様ファーストの
見学形式です
時間帯一組様限定で、じっくりと見学いただくために、モデルハウス見学は完全予約制にて行っています。ご予約特典もご用意していますので、エントリーフォームよりご予約をお願いいたします。お電話でも大歓迎です。
FLOW
見学当日の流れ
STEP

敷地の方角・特性、性能、
仕様等の説明
モデルハウス見学のご予約をいただいた日時に、現地までお越しください。 お客様のご要望に応じて、モデルハウスの基本性能や基本仕様、コンセプトについて解説いたします。
STEP

内観、外観の細部についての
プランを解説
なぜこの間取りになったのか、なぜこの外観デザインなのか?というプランについて、細部にわたりご説明いたします。すべては、周辺環境との兼ね合いで、必然的にそのようなカタチが生み出されます。
STEP

アンケートへのご記入を
お願いいたします
最後によろしければ、モデルハウス見学を終えてのアンケートにご協力をお願いいたします。もちろん強制ではございませんので、ご安心ください。
COMPANY
会社案内
建てる前も建てた後も笑顔が溢れる関係づくり
人生の中で一番大きな買い物は住宅購入。
弊社は、常にお客様の目線で物事を考え「建てる前も建てた後も笑顔が溢れる関係づくり」を大切に、
これまでに2000棟を超える施工実績を挙げてまいりました。

ママの意見を取り入れた
ママらく家事動線
with mamaはママのための家づくりを考え、時短が叶う家事動線、すっきり片付く収納ができるようなアイデアで間取りを設計しています。
with mamaの家は家づくりを経験したママたちのアイデアを沢山集めて反映したいという想いから、定期的にママ座談会を開催し、ママから聞いた「こうだったらいいのに…」を沢山取り入れています。

最大30年長期保証
頼れる暮らしのパートナー
お引き渡しまでの徹底した検査の実施と結果のご報告、完成後も最大30年に渡る定期点検や瑕疵保証、24時間365日のサポート体制など、完成後も頼れる暮らしのパートナーとしてお付き合いいたします。








